JP-UHC518系列带远传磁翻板液位计根据浮力原理和磁性耦合作用原理工作的。当被测容器中的液位升降时,液位计主导管中的浮子也随之升降,浮子内的磁钢通过磁耦合传递到现场指示器,驱动红白翻柱转180°,当液位上升时,翻柱由白色转为红色,当液位下降时翻柱由红色转为白色,指示器的红、白界位处为容器内介质液位的实际高度,从而实现液位的指示。带远传磁翻板液位计配远传变送器、报警(控制)开关,将现场数据传送至二次显示表或DCS系统。
磁翻板液位计适合容器内液体的液位、界位的测量,指示新颖,读数直观、醒目,观察指示器的方向可根据用户需要改变角度。测量范围大,不受储槽高度限制,指示机构与被测介质隔离,因而密封性好,可靠性高,结构简单,安装方便,维护费用低。
一、技术参数:
测量范围:150~8000mm
(对中心距超过5000mm的或运输条件不允许超过长度的液位计可采用分段制造)
工作压力:2.5MPa;4.0MPa;6.3MPa
工作温度: -20~100℃;-20~200℃;0~400℃
精确度:±10mm
介质密度: 0.5~2.0g/cm3
介质密度差: ≥150kg/m3(测量界位)
环境振动:频率≤25Hz 振幅≤0.5mm
跟随速度: ≤0.08m/s
介质粘度: ≤0.4Pa.s,对于粘度大的介质或测量温度低时易结晶的介质,
可选用加热夹套型液位计
过程连接:旁路侧面安装法兰:DN25,PN1.0或PN1.6、PN2.5
法兰标准:HG20592~20635-97其它法兰标准请用户注明。
材质:旁路管:1Cr18Ni9Ti;304;316L
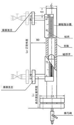
二、带远传磁翻板液位计尺寸图与安装示意图:
![]() |
![]() |
||||||||
三、磁浮子翻板液位计选型表:
| JP-UHC | 磁浮子翻板式液位计 | |||||||
| 代 号 | 显示方式 | |||||||
| 517 | 就地翻板显示 | |||||||
| 518 | 就地翻板显示+4~20mA远传 | |||||||
| 代号 | 安装方式 | |||||||
| 无 | 侧装式 | |||||||
| D | 顶装式 | |||||||
| 代号 | 液位计类型 | |||||||
| 无 | 基型 | |||||||
| W | 保温型 | |||||||
| J | 防腐型 | |||||||
| S | 防霜型 | |||||||
| Z | 保温防腐型 | |||||||
| Y | 顶装防腐型 | |||||||
| 代号 | 报警控制 | |||||||
| 0 | 无报警 | |||||||
| 1 | 带上限报警 | |||||||
| 2 | 带下限报警 | |||||||
| 3 | 带上下限报警 | |||||||
| 代号 | 浮子材质 | 代号 | 本体材质 | |||||
| P | 不锈钢 | P | 不锈钢 | |||||
| L | 防锈铝 | L | 防锈铝 | |||||
| T | 钛 | T | 钛 | |||||
| S | PVC塑料 | S | PVC塑料 | |||||
| F | 氟塑包裹 | F | 氟塑管 | |||||
| PF | 内衬四氟 | |||||||
| PP | 内衬丙烯 | |||||||
| PE | 内衬乙烯 | |||||||
| 代 号 | 待标明的数据 | |||||||
| B1 | 标注法兰标准、通径、压力等级 | |||||||
| B2 | 标注实际操作温度 | |||||||
| B3 | 标注实际操作压力 | |||||||
| B4 | 标注测量介质的密度 | |||||||
| B5 | 标注订货长度,或提供法兰间距 | |||||||









![[list:title]](/uploads/allimg/180721/1-1PH1144922.jpg)

